一番町2売地

1,282.4万円

岡山県笠岡市一番町

山陽本線「笠岡」駅徒歩29分

価格
1,282.4万円
坪単価
20万円(64.12坪)
所在地
岡山県笠岡市一番町
交通

山陽本線笠岡」駅 徒歩29分

土地面積(坪数)
211.98㎡(64.12坪)
建ぺい率 / 容積率
60% / 200%

セールスポイント

一番町にある約64坪の売地です。ハローズまで徒歩5分、建築条件はありません

基本情報

販売区画数
-
総区画数
-
土地面積(坪数)
211.98㎡(64.12坪)
坪単価
20万円
私道負担面積
割合
-
セットバック
要 0.45㎡
建ぺい率 /
容積率
60% / 200%
高圧線下面積
-
傾斜地部分面積
-
路地状敷地
-
地目
宅地
地勢
平坦
造成工事
完了予定
-
土地権利
所有権
建築条件
都市計画
非線引区域
用途地域
第一種住居
接道状況
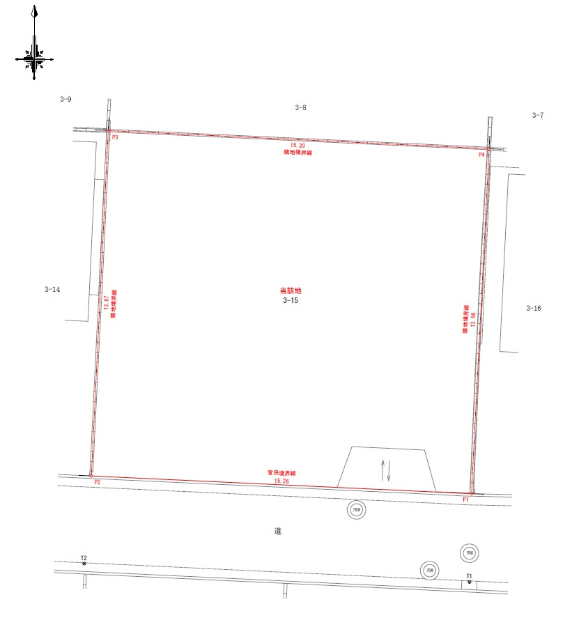
一方(南 公道 3.7m 間口 15.0m)
国土法届出要否
不要
最適用途
住宅用地
その他
法令上の制限
景観法
取引態様
一般媒介
現況
更地
引渡条件
-
引渡時期
相談
取引条件の
有効期限
2025年11月26日

設備条件

設備条件
  • 公営水道 / 公共下水
設備(その他)
    -

その他

物件番号
92976677
管理コード
-
情報更新日
2025年11月12日
次回更新予定日
2025年11月26日
備考
■近隣に商業施設・飲食店多数あり
■小学校まで徒歩4分
■水道メーター代(20mm)は土地代に含む

支払いシミュレーション

月々の支払額
9.6
購入希望物件価格
万円
頭金
万円
金利
%
返済額(ボーナス1回分)
万円
返済期間

※ボーナスは自動で年2回分で計算されます。

近隣の物件

  1. 東大戸売地

    笠岡市東大戸

    - (2007.00㎡)

    1,980万円

  2. 笠岡市笠岡6売地

    笠岡市笠岡

    - (370.55㎡)

    380万円

  3. 笠岡市笠岡7売地

    笠岡市笠岡

    - (40.41㎡)

    270万円

  4. 神島1売地

    笠岡市神島

    - (581.00㎡)

    1,490万円

一番町2売地

一番町2売地

1,2824,000

-(211.98㎡)

お気軽にお問い合わせください

LINEからお問い合わせ 無料お問い合わせ

株式会社木乃新

0865-63-3028

9:00〜18:00

(休:土/日/祝)